指定ください
エステート岡本 中古マンション 2LDK 2,980万円
神戸市東灘区岡本4丁目
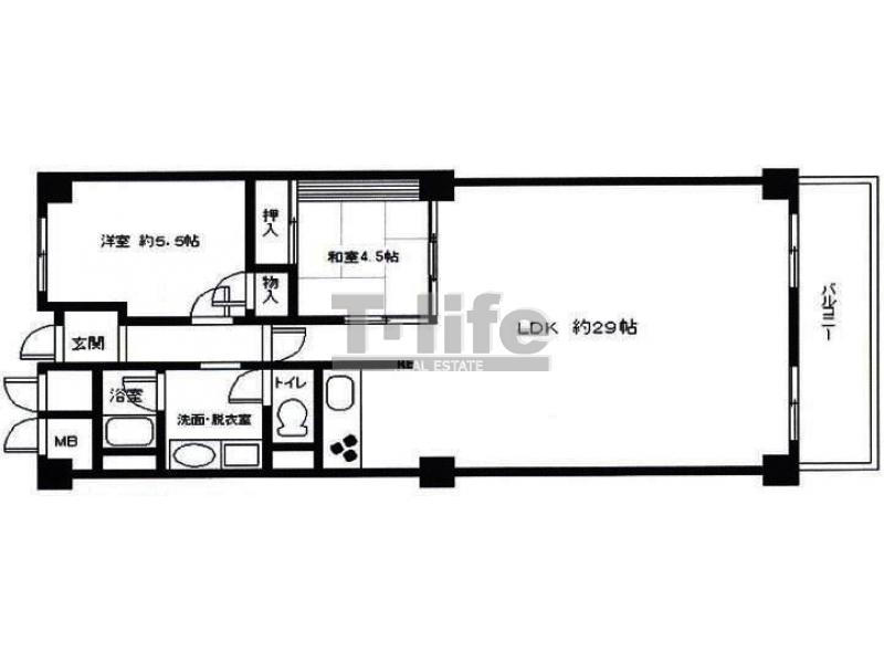
■阪急岡本駅・JR摂津本山駅ともに徒歩10分以内 ■第一種低層住居専用地域の閑静な住宅地 ■面積92㎡の2LDK ■リビング29帖の広々サイズ ■2階部分の東向き ■リフォーム履歴あり
室内リフォーム履歴
2020年実施 ●システムキッチン(食洗器付き)交換 ●浴室(追い炊き機能あり)交換 ●トイレ交換 ●給湯器交換 ●クロス貼替 ●畳表替えなど・・・
現状渡しとなります。リフォームのご相談も承ります。
頭金0円、 借入期間35年、 金利0.625% で住宅ローンを利用した場合のシミュレーション
- ボーナス払
- 円(年2回)
- 月返済額
- 79,014 円/月
- 管理費
- 15,683 円/月
- 修繕費
- 21,900 円/月
- 月額合計金額
- 116,597 円
※シミュレーション結果は、借入を保証するものではありません。
※金利は、金融機関やお客様の諸条件により異なります。
※住宅ローンを利用できない物件もあります。
※管理費・修繕費以外に月額費用負担が必要な場合があります。
この物件の資料請求(無料)
078-436-0017 (担当:豊村)
【情報更新日:2026年01月05日】 【次回更新予定日:2026年01月19日】
| 種目 | 中古マンション | 物件番号 | No 11081 |
|---|---|---|---|
| 価格 | 2,980万円 | 間取 | 2LDK |
| 物件名 | エステート岡本 岡本4丁目の中古マンション 2LDK | ||
| 所在地 | 神戸市東灘区岡本4丁目6-8 住所から地図を調べる |
||
| 交通 |
阪急神戸線 岡本駅まで、徒歩9分 JR神戸線 摂津本山駅まで、徒歩10分 徒歩分数は80m/分で計算しています
|
||
| 間取詳細 | LDK29.0、5.5洋、4.5洋 | ||
| 専有面積 | 92.92m² | 計測方法 | 壁芯 |
| バルコニー面積 | 5.8m² | バルコニー方向 | 東 |
| 総戸数 | 85戸 | 階/階建 | 2階/4階建 |
| 現況 | 空室 | 駐車場 | 空無 |
| 管理費 | 15,683円 | 修繕費 | 21,900円 |
| 小学校区 | 本山第二小学校 | 中学校区 | 本山中学校 |
| 構造 | 鉄筋コンクリート造 | 用途地域 | 第一種低層住居専用地域 |
| 管理組合 | 有 | 取引態様 | 仲介 |
| 管理形態 | 全部委託 | 管理人 | 日勤 |
| 築年月 | 1974年9月(昭和49年)築51年 | 引渡時期 | 即時 |
| 諸費用 | 土地権利 | 所有権 | |
| 特色 | エレベータ、二階以上、食洗機付キッチン、浴室乾燥機、追焚機能付浴槽、温水洗浄便座、室内洗濯機置場、TV付インターホン、R2号より北側阪急線北200mまで | ||
| 備考 | エステート岡本 岡本4丁目の中古マンション 2LDKは、神戸市東灘区岡本4丁目にあり、竣工が1974年9月頃で、築51年のマンションです。 このマンションの立地は、阪急神戸線 岡本駅徒歩9分のところにあります。 総戸数は85戸の建物です。 新婚の方、家族人数の少ない方におすすめです。 広めの間取りを希望される単身者の方にも最適です。 空室ですが、内覧ご希望の場合は鍵の手配がありますので、事前に連絡願います。 |
||
| アイコン |
|
||
かんたん資料請求お客様の連絡先
078-436-0017 (担当:豊村)




















